New Classic Townhouse
Single Family Home
Upper East Side
New York City
6800 sf
5 bedroom 6.5 bathroom
Architecture + Interior Design + Lighting + Furniture + Millwork + Site Planning

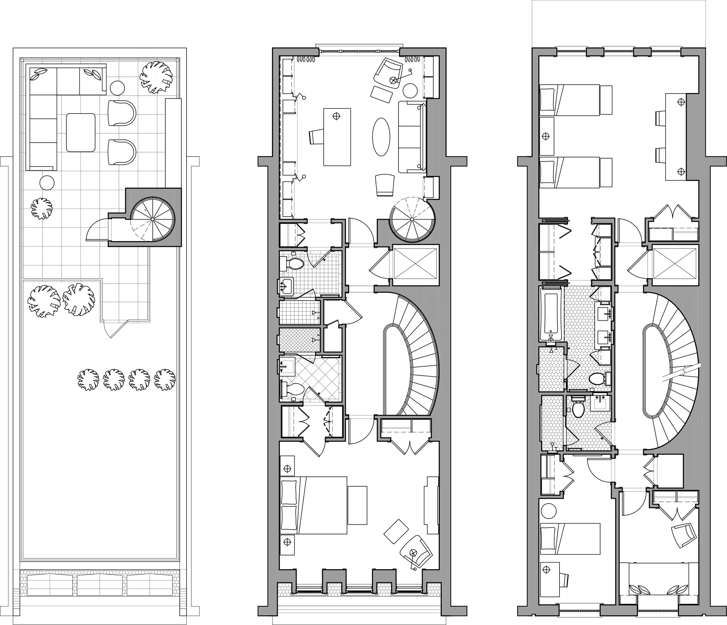
A full excavation and new build were needed to transform this Upper East Side site into a spacious home for a couple and their three boys. Ageloff Design Group planned the new house to the maximum allowable height, fitting in five full floors and adding a roof terrace, ground-level greenhouse and an entirely underground lower level with a nine-foot ceiling. This city home has many of the features of a grand country house. The interior includes a formal entry with an elliptical staircase rising to a skylight, a formal living room and dining room with parlor floor butler’s pantry, master suite and luxurious marble bath, three additional family bedrooms, his and her studies, a large playroom and housekeeper’s room. Custom moldings and walnut doors, as well as multiple carved stone fireplaces, punctuate the interior. The home is both a classically inspired grand formal residence and a highly functional home for a young growing family of today.

Previous
Previous

Overlooking the High Line

Next
Next

Hudson River Views